位于成都市金牛區金泉街道互助社區七八組的金牛區金水二街幼兒園建設項目施工基本完成。該幼兒園計劃設置15個教學班,每個教學班約30人,建成后可提供約450個學位。
為了更好的響應國家《節約用水條例》和《水污染防治行動計劃》等關于水資源收集、儲備、凈化、回用等要求。金水二街幼兒園在建設初期就精心規劃了一套機房雨水回用設備。該系統旨在高效收集、儲備、凈化并利用園區內的雨水資源,既能減輕城市排水系統壓力,又為幼兒園提供穩定的水資源補給。

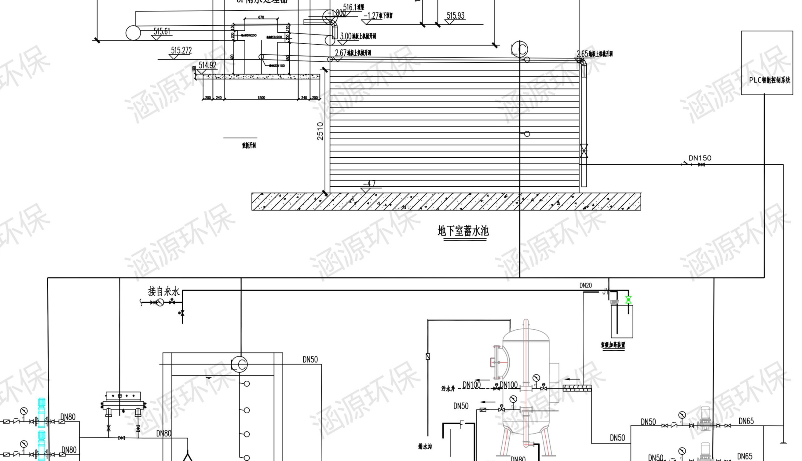
涵源環保為金水二街幼兒園提供的機房雨水回用系統通過科學的雨水回收與處理流程,確保回用水安全與衛生,有效促進水資源循環利用,展現校園在環境保護與可持續發展方面的積極態度與實際行動。
機房雨水回用系統核心在于“收集、處理、利用”三大環節。

項目設計依據:
1)《建筑給水排水設計規范》 GB50015-2019
2)《建筑與小區雨水控制及利用工程技術規范》 (GB50400-2016)
3)《室外給水設計標準》 GB 50013-2018
4)《室外排水設計標準》 GB 50014-2021
5)《海綿型建筑與小區雨水控制及利用》 17S705
6)《建筑給水排水及采暖工程施工質量驗收規范》GB50242-2002
7)建設單位提供的建筑周圍市政條件資料
8)建筑和有關工種提供的條件圖及設計資料
初期棄流:
集水面徑流雨水經常表現出初期沖刷效應,初期徑流雨水中污染物濃度較高、水質混濁,隨著持續降雨,沖刷效應過后,徑流雨水水質將明顯提高。
雨水儲存:
金水二街幼兒園機房雨水回用系統采用的是混凝土雨水收集池,設置于地下室,處理后的雨水采用304不銹鋼水箱儲存,位于雨水機房設備間。

雨水處理工藝:
01雨水沉淀:
雨水處理工藝原則是力求簡單,一方面經棄流處理的雨水水質比較潔凈,另一方面是降雨隨意性大,回收水源不穩定。同時,雨水回用水主要污染物為COD和SS,經初期棄流后的雨水在儲水池內有充分的時間完成沉淀作用,沉淀處理的雨水經簡單過濾,進入雨水回用系統加藥裝置。
02混凝加藥裝置:
通過聚合氧化鋁作為混凝劑,能有效聚集水中的懸浮顆粒和膠體物質,形成較大的絮凝體,加速沉淀分離過程,提高水質澄清度。聚合氧化鋁還能與水中的有機物和部分微生物發生反應,實現有機污染物有效去除。

03多介質過濾設備:
涵源環保機房雨水回用系統,過濾設備采用的是多介質過濾器,濾料層采用石英砂介質。能夠有效地攔截和吸附水中懸浮物、顆粒物和雜質,降低水的濁度。其粒徑分布均勻、硬度高、穩定性好,確保了過濾效果的穩定性和持久性。通過石英砂濾料層層過濾,為機房雨水回用系統提供了清澈、透明的水質保障。

04反沖洗:
在過濾環節,當濾層阻力增至0.05MPa時,系統會自動啟動反洗程序。這一過程歷時7至10分鐘,旨在有效沖洗掉濾層上截留的污物,恢復其過濾能力,反洗后的水會被排入排水溝。

05紫外線消毒:
最后通過紫外線設備照射后的水流,就可以用于整個幼兒園園區內澆花清洗地面等用途了。

這一系統的實施,不僅帶來顯著的經濟效益,更在無形中提升幼兒園的環境質量,減輕雨水徑流對幼兒園排水系統的壓力,降低內澇的風險。同時,通過增加地表透水面積,有助于改善幼兒園的“微氣候”,為孩子們提供一個更加宜居的校園環境。

更重要的是,這一系統成為幼兒園綠色教育的重要組成部分。孩子們通過觀察、學習和參與雨水收集與利用的過程,不僅了解了水資源的珍貴和節水的重要性,還培養了他們環保意識和責任感。讓孩子們學會珍惜每一滴水,學會與自然和諧共處。

在金水二街幼兒園,機房雨水收集與利用系統不僅是一項實用節水措施,更是一份對孩子們未來負責的綠色承諾。讓我們看到科技與環保在幼兒園中的完美結合,也為我們提供了一個值得借鑒的綠色發展范例。