越西縣污水處理項目
越西縣城市生活污水處理工程擴建及配套管網建設項目和城市內澇治理工程項目是涵養一方水土、帶動一方經濟、造福一方百姓的重大民生項目。越西縣將城鄉生活污水處理設施建設工作視為落實鄉村振興戰略、打造具有濃厚鄉土味道和高顏值美麗鄉村的重要內容,通過建設環衛一體化設施、污水處理站及其配套管網,提升污水處理率,優化人居環境,提升城市形象。
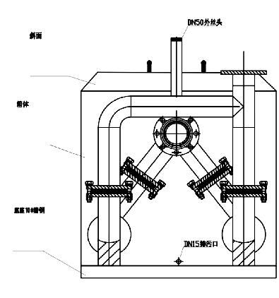
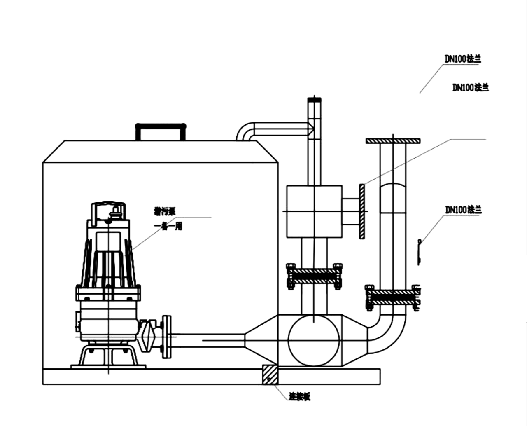
“智能箱式污水提升設備”是我公司自主研發的產品,是地下室污水排放的全自動專業設備。它的特點是將“過濾”和“反沖洗”同時引入污水排放設備中,“過濾”是將雜質固體顆粒擋在集(污)水箱和提升泵之前,從而避免“堵塞”發生,同時避免雜物直接與水泵的葉輪接觸,延長了水泵的使用壽命。在污水提升泵的壓力下,排水反向通過過濾器,又起到“反沖洗”過濾器的作用,使過濾器內表面的雜物脫落下來,隨排水水流帶出箱外,排至室外排水檢查井。污水泵每提升一次污水,就對過濾器內的雜物及沉淀物反沖洗帶走一次,保證過濾器表面無雜質沉淀堆積。密閉式污水提升裝置適用于管道廢水、廁所污水低于下水道液面的場合,可廣泛應用于各類居民樓、別墅地下室、辦公樓、學校、旅館、賓館、購物中心、餐廳服務性場所、地下商場、停車場及地下地鐵站等場合。


